Aménagement maison 110m2
Bonjour,
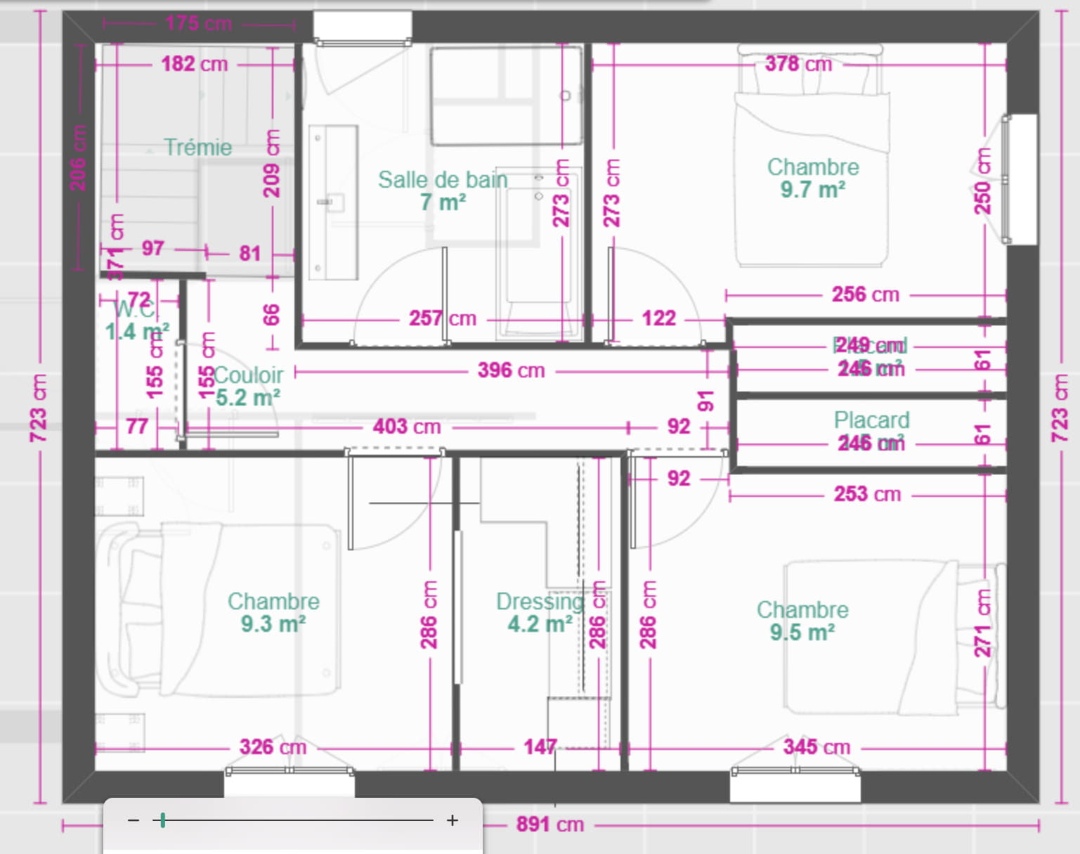
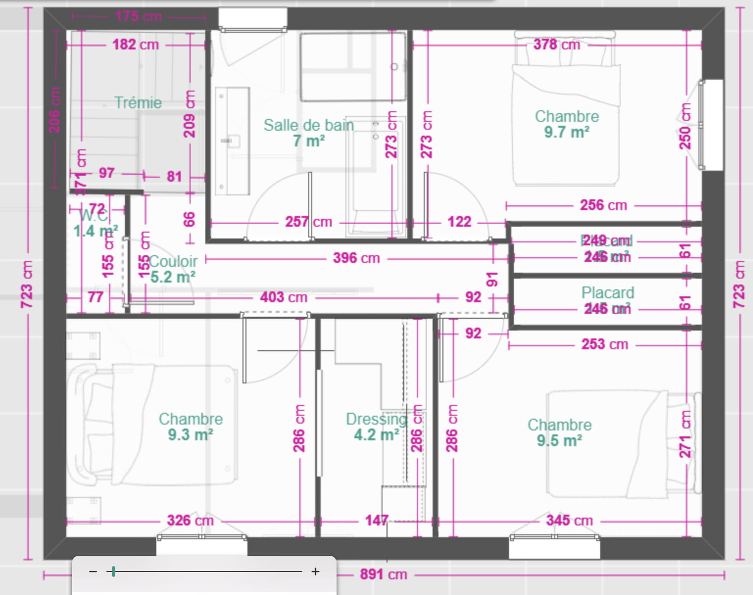
Voici les plans de notre futur maison, nous n'avons pas encore déposé le permis de construire.
Nous pensons rajouter un placard au niveau de l'entrée, en prolongeant un peu les toilettes. Nous pensons également mettre un placard sous l'escalier.
Nous ne savons pas trop comment organiser le Cellier/ buanderie. Dedans il y aura la PAC qui fait 1mx1m avec tous les cables. Un evier, un frigo, la machine à laver et également un meuble de rangement. Ainsi que la place nécessaire pour installer un étendoir.
Concernant l'étage, la salle de bain me semble trop petite. J'ai essayé d'augmenter, mais j'ai peur que l'agencement ne soit pas optimal.
Au niveau de la chambre parentale, je me demande, s'il ne serait pas mieux de mettre la porte a niveau du dressing et de mettre les meuble le long des murs et non en L ?
Merci pour tous vos retour !
- Agencement maison
- Piege a mouche maison - Guide
- Désodorisant maison recette grand-mère - Accueil - Recettes de produits ménagers
- Blattes maison - Guide
- Piege a guepe maison - Guide
- Punaise volante maison - Guide
 
    
    
        
    
    

